- 新価格
- 新築一戸建て
◆春のご成約キャンペーン!!◆【3/10新価格】ルルーディア三入南2丁目⑧
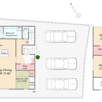
4LDK +サンルーム +シューズインクローク
新築一戸建て
- 販売価格
- 2895万円
春のご成約キャンペーン!!
4/末までのご成約でお引越し費用30万円分プレゼント!!
約60坪の広々敷地!!
全面道路も広いので、駐車もスムーズ♪
小学校も近く、お子様の通学も安心です。
オープンハウス
開催日程
4/19(日)
10:00~17:00
10:00~17:00
交通
丸子山バス停 徒歩4分
物件概要
- 物件名
- ◆春のご成約キャンペーン!!◆【3/10新価格】ルルーディア三入南2丁目⑧
- 住所
- 広島市安佐北区三入南2丁目 Google mapで見る
- 交通
丸子山バス停 徒歩4分
- 間取り
- 4LDK +サンルーム +シューズインクローク
- 価格
- 2895万円
- 土地面積
- 196.94m2
- 建物面積・専有面積
- 110.95m2
- 駐車場
- 3台
- 完成時期(築年数)
- 2026年2月
- 取引形態
- 媒介
- 販売戸数
- 1
- 総戸数
- 1
周辺環境
アクセス
設備情報
LDK15帖以上/サンルーム/シューズインクローク/和室あり/ランドリールーム
システムキッチン/対面キッチン/パントリー(食器・食品の収納庫)/食器洗浄乾燥機/床下収納
トイレ2箇所
シャワー付洗面台/浴室1坪以上
オール電化/ウォークインクローゼット/TVモニター付インターフォン











