- 新価格
- 即入居可能
【12/2新価格】★今だけご来場者特典あり (12月限定)★ルルーディア山田新町1丁目②
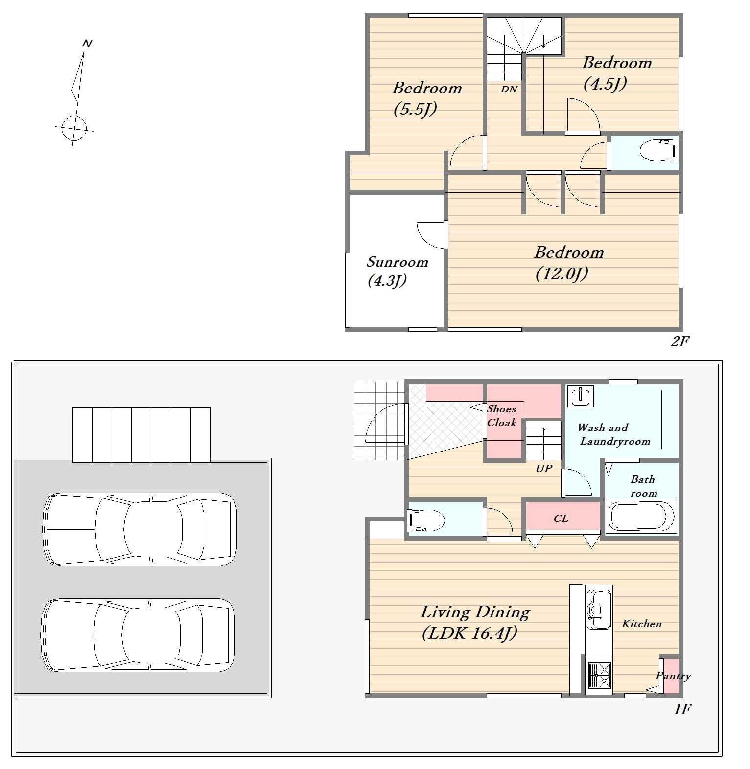
4LDK +サンルーム +シューズインクローク
新築一戸建て
- 販売価格
- 3496万円
【ご来場プレゼント情報】
12月末迄の期間限定でネットから来場予約しアンケート記入 (1家族1回のみ)して頂いた方を対象に5000円分のお米券、ガソリンギフト券いずれかを進呈させていただきます。
2階の12帖の洋室は間仕切り可能な設計になっています!
お子様の成長とともにお部屋を分けることも可能です!
オープンハウス
開催日程
12/21(日)
10:00~17:00
10:00~17:00
交通
山田団地バス停 徒歩6分
物件概要
- 物件名
- 【12/2新価格】★今だけご来場者特典あり (12月限定)★ルルーディア山田新町1丁目②
- 住所
- 広島県広島市西区山田新町1丁目12 Google mapで見る
- 交通
山田団地バス停 徒歩6分
- 間取り
- 4LDK +サンルーム +シューズインクローク
- 価格
- 3496万円
- 土地面積
- 184.81m2
- 建物面積・専有面積
- 104.96m2
- 駐車場
- 2台
- 完成時期(築年数)
- 2025年8月
- 取引形態
- 媒介
- 販売戸数
- 1
- 総戸数
- 1
周辺環境
アクセス
設備情報
LDK16帖以上/サンルーム/ランドリールーム/シューズインクローク
システムキッチン/対面キッチン/パントリー(食器・食品の収納庫)/食器洗浄乾燥機/IHクッキングヒーター/床下収納
トイレ2箇所
シャワー付洗面台/浴室1坪以上
オール電化/TVモニター付インターフォン/エコキュート











